2025橡胶和塑料软管及软管组合件的静液压试验方法之爆破压力试验-「亿威仕」

2025橡胶和塑料软管及软管组合件的静液压试验方法之爆破压力试验

0     编辑:亿威仕 | 市场部     2025-09-18    

今天给大家带来的分享是关于标准《GB/T 5563-2025 橡胶和塑料软管及软管组合件 静液压试验方法》中爆破压力试验的内容,新标准将于 2026-03-01 实施。

爆破压力试验:

1、静液压试验升压速度规定

升压速度应是恒定的,对公称内径小于或等于 50mm 的软管应在 30s~60s 之间达到最终压力。对于公称内径大于 50mm 而小于或等于 250mm 的软管,其达到最终压力所需时间应在 60s~240s 之间。对于公称内径大于 250mm 的软管,和/或当测试软管长于规定的最小自由长度时,达到最终压力所需要的时间应由制造厂和使用者决定。

2、爆破试验要求:

按照规定的速度升高压力,直至软管和软管组合件破坏。

端部接头的泄漏、接头拔脱或距接头末端 25mm 内的破裂或与软管外径相等的距离内的破裂(以较严重者为准)视为组合件性能失效。

在试验报告中应记录下软管爆破损坏的位置和状态。如果产品标准中有规定,当达到规定的爆破压力时结束试验。

该试验应被视为破坏性试验,应根据当地环境指南处置试样。

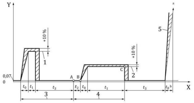
试验步骤的说明,见图 1。

此完整试验程序(验证压力——试验压力——爆破压力)仅适用于"型式试验"。对于例行试验,验证压力后的"测量结果"仅适用于当相关软管产品标准有规定时。

测量初始长度和直径或周长,并标出扭转测量时 A 和 B 点之间的参考标记。在 C 点前直接测量长度、直径或周长、扭转和弯曲的增加。

图 1 规定的静液压试验程序示意图

标引序号说明:

X——时间,t;

Y——压力,p(MPa);

1——验证压力;

2——试验压力;

3——泄露和缺陷的检测;

4——测量;

5——爆破压力;

t0——规定压力增加时间;

t1——规定压力保持时间;

t2——在参考压力(0MPa 或 0.07MPa)下初始尺寸(长度和直径)时测量时间;

t3——不同压力下规定的等待时间;

a——即将爆破。

b——爆破。

图 1 规定的静液压试验程序


以上就是今天的分享!如果您对用于上述试验的软管静液压试验装置感兴趣,欢迎与我们联系!

软管静液压爆破试验台